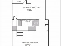
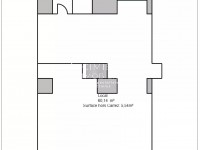
NICE CENTRE VILLE - DUBOUCHAGE: RARE, à proximité du futur Hôtel des Polices et de l'école Rothschild, dans bel immeuble niçois, local commercial de 122 m² avec accès PMR, bénéficiant d'un fort passage. Configuré en duplex, il est composé en RDC d'un plateau de 66 m² avec sanitaires, au 1er niveau un bureau de 24 m² et une mezzanine de 21 m² avec salle de douche et deuxième toilettes.
Facilement accessible, proche toutes commodités, bus, parking Marshall et tramway Durandy.
Activités possibles: Cabinet d'architecte, siège, entrepôt ou magasin d'une entreprise de peinture, vitrerie, revêtements muraux et de sol ou travaux de bâtiment.
Charges annuelles : 2 808 €.
Les honoraires d'agence seront intégralement à la charge du vendeur.
449 000 €
Vente - Local, Nice Carabacel
85754135 - Nice Carabacel
Informations
| Reference | 85754135 |
| Type de Bien | |
| Catégorie | Local |
| Ville | Nice |
| Quartier | Carabacel |
| Surf. habitable | 122m² |
| Prix | 449 000 € |
Les informations sur les risques auxquels ce bien est exposé sont disponibles sur le site : www.georisques.gouv.fr
Financer ce bien
| Montant de l'achat |
€
|
| Votre apport |
€
|
| Montant emprunté |
| Durée | Taux | Mensualité |
|---|---|---|
| 10 ans | 2.80% | |
| 15 ans | 2.80% | |
| 20 ans | 2.85% | |
| 25 ans | 2.95% | |
| 30 ans | 2.95% |
Meilleures conditions fournies par ArtemisCourtage.com. Sous réserves d'acceptation du dossier. Taux actualisés au 01 Septembre 2025.